

December 22, 2023 - Volume 23.7 Sign up for email alert for new BULLET POINTS
Click to see "Bullet Points" archive

Merry Christmas
The Night that Changed the World Forever
.
.
MAPLEWOOD CABIN
---- U P D A T E ----

Erin Church of the Nazarene has never stopped working on Maplewood Cabin which is replacing "old Maplewood." We are all thankful for the sacrifice this local church is making to give CGC a prototype of what all current dorms will eventually be.
We have rounded the corner, so the next chunk of work will be finishing the inside to be ready for guests, and of course adding the exterior metal for the final touches.
We are planning on new Maplewood Cabin being ready for use by District Assembly in 2024. The new cabin boasts four bunk spaces that each sleep up to 20 people. There will be a queen-sized bed in each room so mom and dad can avoid bunk beds. This will be great for family groups who want a shared experience at Family Camp.
.
.
LET'S PRAY TOGETHER
Our Father in Heaven, we never tire making our requests known to you. Help us to approach you boldly as heirs and not in fear as strangers. Regardless of the words that pass through my lips, Your will be done always.
- December and January are the leanest months at CGC. Pray that God will lay it own the hearts of those who will hear to share a special offering over the next two months to help with operations.
- Gary Rhodes continues to improve from the snake bite he experienced in the fall. Pray for his continued healing.
- The Small Business Administration has approached CGC again about the possibility of us receiving funds to help with our flood relocations. Pray they will shoot straight with us and give us no false hope.
- Continue to pray for the family of Talmadge Johnson in the wake of his abrupt passing earlier this month.
- Pray for the staff of CGC. We have 7 full time employees and another couple dozen part time employees. Working in a ministry has unique challenges. Please pray that Satan will not distract them from keeping their eyes on God in their daily work.
- Fall retreats continue once we make it through the Christmas season. Thank God for the wonderful groups who include CGC as part of their discipleship ministries. It is also through these groups God provides for our financial needs.
.
.
- Set up your TBAM giving account to pay automatically each month or annually. www.tenbucksamonthclub.com
- Paper checks still work, and billpay with your bank is a great choice, too.
TBAM donors are making a big difference!
.
.
GOD provides for His purposes in a
variety of ways.
It is IMPOSSIBLE
to pin GOD down and say,
"This is how it's done."
.

.
BULLET POINTS NEWSLETTER ALERT
Would you like to receive an e-mail notification when our newsletter issues?
Register at:
Happy New Year!

.
.
Life is Shaped by Who We Love,
Who Loves Us, and
What We Do Together
by Finley Knowles
The ministry of Camp Garner Creek (CGC) is one of those things "we do together."
I've had a lot of jobs in my lifetime but never one that was so dependent on the team of people who gather 'round to pray, serve, and give. The doers.
So as Christmas is but a few days away...and the beginning of a new year not far behind, I want to thank you all who respond to God's promptings to support CGC in the varied ways "doing" is fleshed out.
Because of the doing God calls us to, CGC successfully touched the lives of 8,000 campers, retreaters, and worshippers this year. We each commit small acts with great love so our guests have this refuge from the daily noise that distracts us so easily.
I am thankful to call CGC my home, and I'm most thankful for each of you. It is a blessing to be part of this team with you.
.
.
Good-bye Redbud and Hello Springfield!
This is a true story, and in truth, all things that live ultimately and eventually come to an end.
Springfield First Church of the Nazarene in Springfield, Tennessee was founded in the early 1900's by J O. McClurkan. Dr. McClurkan also served as the first president of what is now Trevecca Nazarene University when it was founded in 1901 as an independent training school for ministers. The church in Springfield was a holiness force for many decades. God used the church powerfully. And still the time came when the Church Board at Springfield concluded the congregation was not able to sustain the expenses of keeping the church open. This is a painful process.
The Board prayerfully asked the MidSouth District to guide them through the steps to close their church, and Springfield Church of the Nazarene was disorganized in 2022.
Part of disorganizing a Nazarene church is planning how to distribute remaining assets such as property, buildings, and any funds that remain in the church's bank account. Working with the MidSouth District's Leaders, the Church Board desired to donate assets to something that would outlive their church. Camp Garner Creek was chosen to receive a donation.
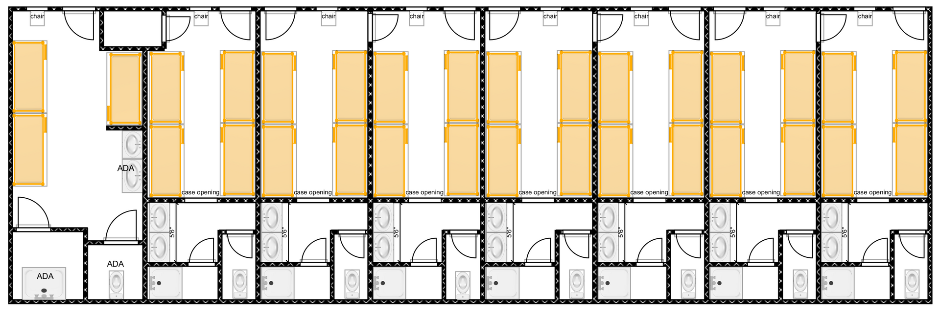
With the donation, CGC is gutting Redbud dorm, and when the renovation is completed, Springfield Cabin will be the result. Springfield will be ready for her first guests by Family Camp in May 2024.
Thank you to Springfield generations present and passed who followed God to be a Church that loved and served the community. Your investment through the years comes down to be an investment to CGC for years to come and serves to be a memoriam for the people of Springfield for over 100 years.
------------------------------------
How will Springfield Be Different than Redbud?
The layout of Springfield is much different than Redbud. Springfield will have 8 mini bunk rooms. Each regular room will sleep a maximum of 8 people, while the ADA compliant room sleeps up to 6. Each room will have its own restroom and heat and air controls. All rooms open directly to the outside.

.
.
.
.
Ways to Support CGC Financially

.
.
PRAYER changes what we SEE and what we SEEK.
Each month CGC Chaplain Bob McKenzie shares a prayer letter.
Would you like to subscribe?
.
.


